六本木駅 11.5坪 4階
| 物件番号 |
#07312 |
| 所在地 | 東京都港区六本木3-15-24 belle六本木 |
| 最寄り駅 |
東京メトロ日比谷線・都営大江戸線「六本木駅」徒歩4分 |
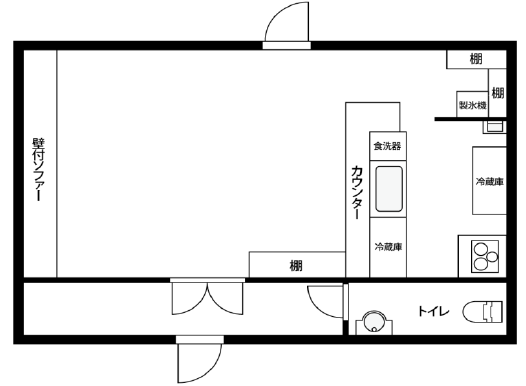
| 現況 | ダイニングバー(居抜) |
| 面積/階数 | 38㎡/4階401号室 |
| 家賃 |
354,200円(税込) |
| 管理費 | 37,950円(税込) |
| 保証金(償却) | 3ヵ月( 1ヵ月) |
| 契約形態 | 定期借家契約 |
| 契約年数 | 3年 |
| 更新料 | 新賃料の 1ヵ月分 |
| 礼金 | なし |
| 構造 | SRC造 8階建て |
|
備考 |
スナック・サパークラブ・バーに最適! ごみ処分代:月額16,500円 看板使用料:月額16,500円 |





