六本木駅 44.5坪 地下1階
| 物件番号 |
#07311 |
| 所在地 | 東京都港区六本木4-10-10 正直屋ビル |
| 最寄り駅 |
東京メトロ日比谷線・都営大江戸線「六本木駅」徒歩1分 |
| 現況 | クラブ(居抜相談可能) |
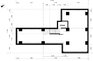
| 面積/階数 | 147.06㎡/地下1階 |
| 家賃 | 1,780,000円(税別) |
| 保証金(償却) | 8ヶ月(2ヶ月) |
| 契約形態 | 定期借家契約 |
| 契約年数 | 3年 |
| 再契約料 | 新賃料の1ヶ月 |
| 礼金 | 1ヵ月 |
| 構造 | 鉄筋・鉄骨コンクリート造 地上8階地下1階建 |
| 築年月 | 1984年10月 |
|
備考 |
・入居時期:3月中旬ごろ ・看板使用料:月額36,000円 ・風俗営業(1号)の場合午前1時まで営業可能 |




