六本木駅 14.7坪 1階
| 物件番号 |
#08047 |
| 所在地 | 東京都港区西麻布4―11―28麻布エンパイアマンション |
| 最寄り駅 |
東京メトロ日比谷線・都営大江戸線「六本木駅」徒歩8分 東京メトロ日比谷線「広尾駅」徒歩8分 |
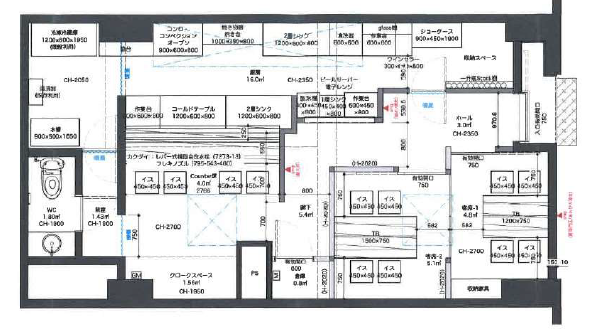
| 現況 | 和食店(居抜) |
| 面積/階数 | 48.6㎡/103号室 |
| 家賃 |
583,000円(税込) |
| 管理費 | 16,500円(税込) |
| 保証金(償却) | 10ヵ月( 2ヵ月) |
| 契約形態 | 定期借家契約 |
| 契約年数 | 3年 |
| 更新料 | 新賃料の 1ヵ月分 |
| 礼金 | 1ヶ月 |
| 構造 | 鉄骨鉄筋コンクリート造地下1階地上10階建て |
| 備考 |
・再契約応相談 ・契約終了時はスケルトン返し ・1年未満での解約については解約違約金(賃料の1ヶ月分)有り |





