錦糸町駅 33坪 2階
| 物件番号 | #07328 |
| 所在地 | 東京都墨田区江東橋4-16-3 かつらぎ商事ビル |
| 最寄り駅 |
JR総武線「錦糸町駅」徒歩4分 |
| 現況 | 韓国クラブ(居抜) |
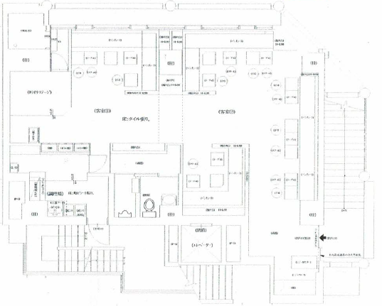
| 面積/階数 | 110.3㎡/2階 |
| 家賃 | 590,000円(税別) |
| 管理費 | 30,000円(税別) |
| 保証金(償却) | 3,000,000円(30%) |
| 契約形態 | 普通借家 |
| 契約年数 | 3年 |
| 更新料 | 賃料の2ヶ月 |
| 礼金 | 賃料の2ヶ月 |
| 構造 | 鉄骨鉄筋コンクリート造 7階建 |
| 造作譲渡料 | 5,000,000円 |
|
備考 |
・開業準備期間、家賃優遇制度あり ・専用階段あり ・諸条件相談可能 |




