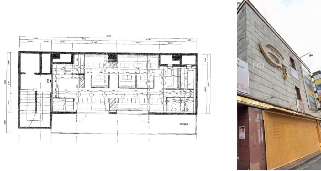
新宿駅 25.5坪 5階
| 物件番号 | #07283 |
| 所在地 | 東京都新宿区歌舞伎町1-10-3 G3ビル |
| 最寄り駅 |
JR山手線「新宿」駅徒歩5分 西武新宿線「新宿」駅徒歩6分 |
| 現況 | ホストクラブ(居抜) |
| 面積/階数 |
84.3㎡/5階 |
| 家賃 |
1,347,456円(税込) |
| 共益費・管理費 | 210,540円(税込) |
| 保証金(償却) |
6ヶ月(2ヶ月) |
| 契約形態 | 定期借家 |
| 契約年数 |
2年 |
| 再契約 | 相談 |
| 礼金 | 2ヶ月 |
| 構造 | RC構造 地下2階付5階建て |
| 入居可能日 | 相談 |
|
備考 |
・看板製作費:495,000円 ・ゴミ処理代:月額30,879円 ・害虫駆除代:月額18,387円 ・看板掲載費:月額11,000円 |




